安平縣艾瑞金屬絲網有限公司
聯系人:臧經理
手機:13102786273
郵箱:1527528951@qq.com
地址:河北省安平縣城東新工業園緯二路18號
鋁包鋼軍用機場圍界網與民用機場圍界設計方案有什么不同
添加時間:2023-08-01 點擊量:
鋁包鋼軍用機場圍界網與民用機場圍界設計方案有什么不同
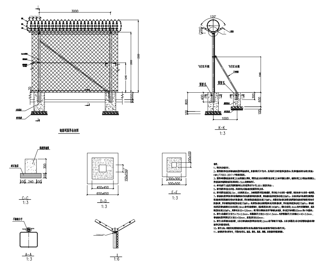
安平縣艾瑞金屬絲網為您具體分析軍用機場圍界與民用機場圍界的區別,如果單純的從鋁包鋼機場圍界這一款產品來講,軍用與民用機場圍界毫無差別。下圖是今年**機場項目與**軍用機場圍界項目圖紙對于比:


左圖是民用機場鋁包鋼圍界的設計圖紙,右圖是軍用機場的設計方案(由于頁面顯示無法將清晰的圖樣顯示)。兩張圖紙的設計方案,完全一樣,包括文字描述都是一模一樣的。因此軍用機場和民用圍界的設計方案相同。具體不同的地方是機場的建設流程不同,檢測要求不同,提供的樣本同。如果想了解更多機場圍界信息,可來電咨詢。
標簽: 青海軍用機場圍欄網、 新型鋁包鋼機場圍界網、 機場飛行區鋼筋網圍界、 新型鋁包鋼機場圍界、 通用機場航站樓圍界網規格參數、 機場圍界金屬鐵絲網墻、




機場鋁包鋼勾花圍界網
機場鋼筋網圍界生產廠家
機場鋁包鋼圍界工程案例
珠海機場鋼筋網圍界網案例 
