安平縣艾瑞金屬絲網有限公司
聯系人:臧經理
手機:13102786273
郵箱:1527528951@qq.com
地址:河北省安平縣城東新工業園緯二路18號
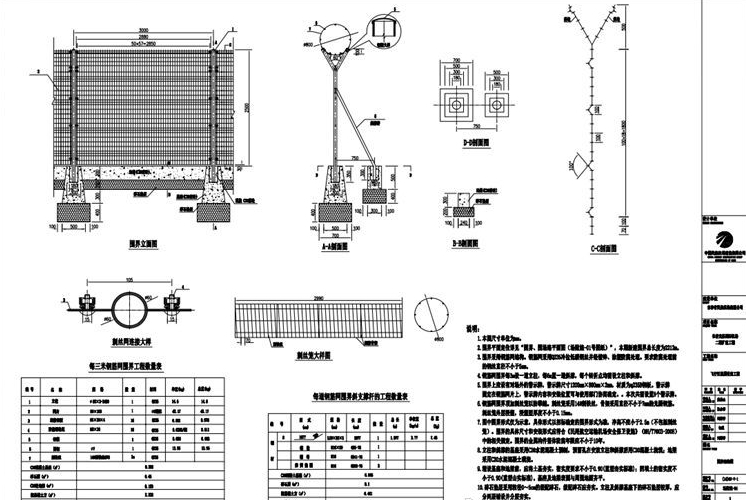
通用機場鋼筋網圍界構造圖
添加時間:2022-08-05 點擊量:


通用航空機場鋼筋網圍界構造
1.本圖鋼筋網圍界尺寸單位均以毫米計,比例為示意。
2.鋼筋網圍界施焊前,要求各單體矯正平直并去毛刺及銹跡。
3.鋼筋網圍界焊接部位要求過渡圓滑,無焊渣,虛焊,氣孔等缺陷。
4.鋼筋網圍界采用鍍鋅后涂塑的防腐形式,按照GB/T18226-2000標準執行,第一層熱浸鍍鋅量:網片為每平方米90克,立柱為每平方米270克,第二層涂層為聚氯乙烯,厚度不小于0.4毫米。
5.鋼筋網圍界涂層應均勻光滑,連續,無孔隙,裂隙,脫皮及其它有害缺陷。
6.鋼筋網圍界基座采用C20水泥混凝土預制,預留直徑為180mm深600mm的圓孔,待鋼筋網框架準確安放后,用C20水泥混凝土現澆預留孔。
7.鋼筋網圍界所在邊界若有加筋擋土墻,則圍界基礎按加筋擋土墻帽石做,否則按上面所述做基礎。
8.鋼筋網圍界埋設基座和地梁前,應將土基夯實密實度要求不小于0.90(重型擊實標準),基座回填土的密實度不小于0.90(重型擊實標準)。
9.鋼筋網圍界下部地面設置了地梁,地梁采用C20素混凝土。
10.鋼筋網圍界頂加刺絲網以防攀越,刺絲采用14#刺鐵絲。鋼筋骨架采用直徑不小于7mm的光圓鋼筋。刺絲籠外層浸塑,浸塑層厚度不小于0.15mm。上部及底部沿縱向各設一條扁鋼助條。
11.鋼筋網圍界每相距9米設置一道斜撐桿。
12.鋼筋網圍界的位置及工程量見《機場總平面圖》。
13.本圖鋼筋網圍界僅符合標準要求的一種鋼筋網圍界做法,具體實施時業主可在高度尺寸和結構符合標準要求的范圍內。綜合比選后選用其它做法的鋼筋網圍界。
標簽: 機場鋼筋圍欄網產品特性、 機場隔離鋼筋網圍界、 機場金屬隔離網安裝、 航站樓鋼筋網圍界、 機場Y型防護網、 機場鋼筋網圍界、 機場防護護欄網、




機場鋁包鋼勾花網圍界
機場鋼筋網圍界生產廠家
機場隔離鐵絲網圍界工程
機場鐵絲網圍界圖冊展示 
